全国服务热线

13363683360

公司公告:你需要的,我们都有 产品齐全、质量上乘、价格合理、发货及时、售后完善
设备金具
联系方式

地址:河北省河间市行别营工业区

手机:13363683360(韩经理)

Q Q:1285665616

邮箱:1285665616@qq.com

绝缘子|绝缘子|复合绝缘子|玻璃绝缘子|支柱绝缘子|电力金具厂家-河间天恒电力器材left图
SLG螺栓型铜铝过渡设备线夹

日期:2019-09-20 08:39:26

点击:

  

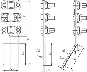
型号
74标
适用导线截面(mm2)
主要尺寸(mm)
A
B
L
L1
L2
/
 
35~50
40
6
120
65
45
SL-1Q
70~95
40
6
136
80
45
SLG-1A(B)Q
SL-2Q
35~50
40
6
145
65
65
SLG-2A(B)Q
SL-3Q
70~95
40
6
175
80
80
SLG-2A(B)Q-80
SL-4Q
80
7
239
125
85
SLG-2A(B)Q-100
/
100
7
260
125
100
SLG-3A(B)Q
120~150
50
6
225
125
85
SLG-3A(B)Q-63
SL-5Q
63
7
239
125
85
SLG-3A(B)Q-80
 
80
6
239
125
85
SLG-3A(B)Q-100
SL-7Q
100
10
260
125
100
SLG-4A(B)Q
 
185~240
50
6
225
125
85
SLG-4A(B)Q-63
SL-6Q
63
7
239
125
85
SLG-4A(B)Q-80
 
80
6
239
125
85
SLG-4A(B)Q-100
SL-8Q
100
10
260
125
100
SLG-5A(B)Q
/
300~400
63
8
239
130
85
SLG-5A(B)Q-80
80
10
260
130
85
SLG-5A(B)Q-100
100
10
260
130
100
SLG-6A(B)Q-100
/
500~630
100
10
320
130
100
SLG-6A(B)Q-125
125
12
320
160
125

TAG标签:

官方QQ 河间市天恒电力器材有限公司