全国服务热线

13363683360

公司公告:你需要的,我们都有 产品齐全、质量上乘、价格合理、发货及时、售后完善
高压隔离开关
联系方式

地址:河北省河间市行别营工业区

手机:13363683360(韩经理)

Q Q:1285665616

邮箱:1285665616@qq.com

绝缘子|绝缘子|复合绝缘子|玻璃绝缘子|支柱绝缘子|电力金具厂家-河间天恒电力器材left图
HGW4隔离开关

日期:2018-09-27 11:23:38

点击:

  

HGW4隔离开关

HGW4隔离开关
  • 国标代号 : HGW4系列隔离开关
  • 同类产品其他厂家代号 : 各厂家代号基本相同
HGW4系列户外高压隔离开关主要产品型号有:HGW4-10W/400、630、1250,HGW4-10DW/400、630、1250,HGW4-15W/400、630、1250,HGW4-15DW/400、630、1250,HGW4-20W/400、630、1250,HGW4-20DW/400、630、1250,HGW4-40.5,HGW4-72.5,HGW4-126,HGW4-126G,HGW4-145
 

详细描述

 

HGW4系列户外高压隔离开关
 

 

 

 
 

 


  HGW4系列户外交流高压隔离开关是三相交流50HZ户外高压电器,用于额定电压40.5-252(245)kV的电力系统中,供高压线路无载荷接、以及对被检修的高压母线、断路器等电气设备与带电高压线路之间电气隔离用。
  该系列产品有下列品种:
  a 按有无接地开关分:不接地、单接地、双接地。
  b 按使用地区分:普通型、耐污型、高原型。
  该系列产品符合国家标准和IEC标准的各项要求。该系列产品抗地震能力良好,能满足地震烈度9度的要求(水平加速度4.9m/s,垂直加速度2.45m/s)。

一、结构: 
  HGW4系列交流高压隔离开关包括三个单极,每极为双柱式结构,主要由底座、支柱绝缘子、导电部分组成。每极有两个绝缘支柱,分别装在底座两端轴承座上,以交叉连杆连接,可以水平旋转。导电闸刀分两半,分别固定在支柱绝缘子上,触头的接触在两个瓷柱的中间。 
  当操动机构动作时,带动支柱绝缘子的一柱转动90度,另一绝缘支柱由于连杆传动也同时转动90度,于是闸刀便向同一侧方向分合。为确保隔离开关和接地开关二者之间操作顺序正确,在产品或机构上装有机械联锁装置,能够确保主分一地合,地分一主合的顺序动作。

二、技术参数:
  10kV-20kV技术参数表:

产品型号
额定电压 kV
额定电流 A
动稳定电流
kV(峰值)
10s热稳定电流
kV(峰值)
重量
kg
HGW4-10W/400、630、1250
10
400、630、1250
30、40、65
15、20、25
25
HGW4-10DW/400、630、1250
10
400、630、1250
30、40、65
15、20、25
25
HGW4-15W/400、630、1250
15
400、630、1250
30、40、65
15、20、25
30
HGW4-15DW/400、630、1250
15
400、630、1250
30、40、65
15、20、25
30
HGW4-20W/400、630、1250
20
400、630、1250
30、40、65
15、20、25
35
HGW4-20DW/400、630、1250
20
400、630、1250
30、40、65
15、20、25
35
  35kV-145kV技术参数表:
                 产品型号Type
 参数Data
 
 
 
 
 
 
 
 
HGW4-40.5
HGW4-72.5
HGW4-126
HGW4-126G
HGW4-145

 额定电压 kV
 Rated voliage kV

40.5
72.5
126
126
145

 额定电流 A
 Rated current A

630 1250
2000 2500

630 1250 2000
2500 4000

630 1250
2000 2500

630 1250

1250 2000
2500

 额定短时耐受电流(有效值 ) kA
 Short time withstand current(rms)

20 31.5
40(46)

20 31.5
40(46)

20 31.5
40(46)

20 31.5

20 31.5
40(46)

 额定峰值耐受电流(峰值) kA
 Peak withstand current(peak)

50 80
100(104)

50 80
100(104)

50 80
100(104)

50 80

50 80
100(104)

 额定短时工频耐压(有效值)
 Rated short-time power frequence  withstandvoltage(rms) kV

对地
to each

85
140

185
(230)

185
275

断口
between breaks

110
160
210
(265)
210
315

 额定雷电冲击耐受电压(峰值)
 Lightning impulse withstand 
 voltage(peak) kV

对地
to each

185
325
450
(550)
450
650

断口
between breaks

215
375

520
(630)

550
750
 
 
 接线端额定水平拉力
 Horizontal force of terminal N

550
(750)

735-750
1000
1000
1500

 单极重量
 Weight of single pole kg

80
200
240
300
300
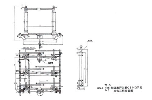
三、安装尺寸及外型图:

 

 

我公司是生产的6-220kV户内外普通型及耐污型高压隔离开关的。生产的户内外高压隔离开关结构合理、性能稳定、工艺先进、运行安全可靠。
  高压隔离开关是一种没有专门灭弧装置的高压开关设备,在分闸状态有明显可见的断口,在合闸状态能可靠地通过正常工作电流和短路故障电流,可供高压电气设备在无负载而有电压的情况下分合电路之用,在线路检修时可保证在隔离区域内安全地进行工作。
四、采用标准:
本厂生产的高压隔离开关满足下列标准:
1 GB1985《交流高压隔离开关和接地开关》
2 GB11022《高压开关设备通用技术条件》
3 GB763《交流高压电器在长期工作时的发热》
4 等效采用IEC-129出版物《交流高压隔离开关与接地开关》
5 等效采用IEC-694出版物《高压开关设备和控制设备标准和共同条款》
6 GB311.1《高压输变电设备的绝缘配合》
7 GB/T16927.1~2《高电压试验技术》
8 GB2706《交流高压电器动、热稳定试验方法》
9 GB3309《高压开关设备在常温下的机械试验》
10 GB5582《高压电力设备外绝缘的污秽等级》 
11 GB5273《变压器、高压电器和套管的接线端子》
12 GB/T12601《高压开关设备严重冻冰条件下的操作试验》
13 GB/T13540《高压开关设备抗地震性能试验》
14 ZB/T6462《交流高压隔离开关开合母线转换电流试验》
15 JB/DQ2080《高压开关设备防雨试验方法》
16 GB11604《高压电器设备无线电干扰测量方法》

五、使用条件:
正常使用条件
1 海拔分为1000m、2000m、3000m;
2 周围空气温度
上限 +40℃
下限 一般地区:户内为-10℃,户外为-30℃;高寒地区:户内为-25℃,户外为-40℃;
3 户内产品湿度:相对湿度:日平均值不大于95%,月平均值不大于90%;
4 户外产品风压不超过700Pa(相当于风速34m/s);
5 地震烈度不超过8度;
6 户外产品覆冰厚度为5mm、10mm;
7 空气污秽程序:
户外产品的使用环境的污秽程度分为0、I级(普通型)、II级(中污型)、III、IV级(重污型),由产品技术条件规定。
8 户内产品周围空气应不受腐蚀性或可烯气体,水蒸气等明显污染,无经常性的剧烈振动。
异常使用条件
说明:用户需要超出上述标准规定及使用条件的产品,由供需双方协商。

TAG标签:

HGW4隔离开关
官方QQ 河间市天恒电力器材有限公司